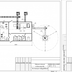
Устройство и принцип работы
Модульная котельная МКУ-1,25 – это набор основного оборудования в сварных металлических каркасах, которые после монтажа становятся единым помещением. Котельная может быть оборудована внутренними системами водоснабжения для личного пользования работников, сантехнической мойкой и санузлом. Отопление в котельной обеспечивается теплом, выделяющимся при работе котлов, а отопление в обслуживаемых помещениях – водяными радиаторами.
Модульная котельная МКУ-1,25 может быть одноконтурной или двухконтурной. Перед попаданием в котельную систему, вода проходит процессы водоподготовки, степень которых зависит от качества среды. Минимальная подготовка включает в себя прохождение через грязевой фильтр, очищающий воду от твердых частиц и предупреждающий поломки. Далее вода насосами подается в котлы, где нагревается до необходимой температуры, и оттуда – на обслуживаемые территории. Регулирование производительности котельной происходит путем отключения котлов или изменением мощности оборудования за счет подачи топлива.
Модульная котельная МКУ-1,25 подразумевает ручную топливоподачу и шлакоудаление. Для хранения топливных запасов можно организовать складское помещение. Для облегчения процесса транспортировки топлива есть возможность укомплектовать котельную топливным бункером. В таком случае подача горючего может осуществляться с использованием механических средств углеподачи.
Модульная котельная МКУ-1,25 представляет собой автономный источник энергии для теплоснабжения и подогрева воды. Она не требует большой территории для установки, легко демонтируется и состоит из отдельных блоков, что позволяет быстро транспортировать котельную.
Условное обозначение
Модульная котельная МКУ-1,25, где:
- М – модульная;
- К – котельная;
- У – установка;
- * – мощность котельной в МВт
Особенности и преимущества
- индивидуальная комплектация;
- автономная работа без зависимости от центральных систем;
- транспортабельность;
- легкий монтаж и демонтаж;
- согласование всех этапов производства.
Размещение и установка
Модульная котельная МКУ-1,25 поставляется блоками, которые на месте монтажа собираются в одно здание. Блоки котельной максимально укомплектованы, все оборудование заводской сборки, что позволяет начать эксплуатацию котельной сразу после монтажа.
МКУ-1,25 устанавливается на ровный фундамент. Блоки соединяются болтами, трубопроводы, электрика и автоматика стыкуется. Далее котельная подключается к коммуникациям и проводятся пуско-наладочные работы.
Эксплуатация и техническое обслуживание
Важно соблюдать периодичность профилактических работ: осмотр котельной на наличие неисправностей, регулярная чистка котлов и дымоходов, регулировка, настройка параметров, осмотр и проверка топливных горелок, анализ выходных газов и своевременное устранением неисправностей.
Комплектация
Модульная котельная МКУ-1,25 комплектуется по заявке заказчика.






















