Устройство и принцип работы
Модульная котельная МКУ-1,0 представляет собой комплект всего необходимого оборудования для подогрева воды, собранный в металлические каркасы, которые соединяются и образует единое помещение. Комплектация модульных котельных зависит от требований заказчика. Помимо всего основного оборудования, в котельной можно установить санузел и мойку для работников.
Стандартно в модульных котельных МКУ-1,0 установлены котлы с ручной топкой и шлакоудалением, но при установке топливного бака можно дополнительно установить системы топливоподачи. Также есть возможность организации помещений для хранения топлива.
Модульная котельная МКУ-1,0 транспортабельна за счет деления на секции. По окончанию работ она легко демонтируется и транспортируется на новое место.
Условное обозначение
Модульная котельная МКУ-1,0, где:
- М – модульная;
- К – котельная;
- У – установка;
- * – мощность котельной в МВт
Особенности и преимущества
- Изготовление под нужды заказчика позволяет укомплектовать модульную котельную исключительно необходимым оборудованием;
- Независимость от центральных систем обеспечивается автономной работой котельной;
- Легкий монтаж и демонтаж котельной позволяет использовать МКУ-1,0 множество раз на множестве объектов;
- Согласование всех этапов производства позволяет учесть все требования и получить нужный результат.
Размещение и установка
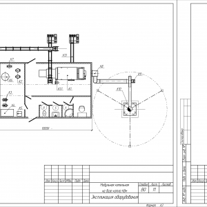
Модульные котельные МКУ-1,0 представляют собой отдельные блоки, которые собираются в единое помещение. В блоках уже установлено все оборудование, что позволит использовать котельную сразу после сборки.
МКУ-1,0 устанавливается на ровный подготовленный фундамент, секции соединяются болтами с учетом стыковки трубопровода и автоматики. После монтажа МКУ-1,0 подключается к коммуникациям.
Эксплуатация и техническое обслуживание
Важно соблюдать периодичность профилактических работ: осмотр котельной на наличие неисправностей, регулярная чистка котлов и дымоходов, регулировка, настройка параметров, осмотр и проверка топливных горелок, анализ выходных газов и своевременное устранением неисправностей.
Комплектация
Модульная котельная МКУ-1,0 комплектуется по заявке заказчика.




















