Устройство и принцип работы
Модульная котельная МКУ-4,5 представляет собой комплект всего необходимого оборудования для подогрева воды, собранный в металлические каркасы, которые соединяются и образует единое помещение. Комплектация модульных котельных зависит от требований заказчика. Помимо всего основного оборудования, в котельной можно установить санузел и мойку для работников.
Стандартно в модульных котельных МКУ-4,5 установлены котлы с ручной топкой и шлакоудалением, но при установке топливного бака можно дополнительно установить системы топливоподачи. Также есть возможность организации помещений для хранения топлива.
Модульная котельная МКУ-4,5 транспортабельна за счет деления на секции. По окончанию работ она легко демонтируется и транспортируется на новое место.
Условное обозначение
Модульная котельная МКУ-4,5, где:
- М – модульная;
- К – котельная;
- У – установка;
- * – мощность котельной в МВт
Особенности и преимущества
- Изготовление под нужды заказчика позволяет укомплектовать модульную котельную исключительно необходимым оборудованием;
- Независимость от центральных систем обеспечивается автономной работой котельной;
- Легкий монтаж и демонтаж котельной позволяет использовать МКУ-4,5 множество раз на множестве объектов;
- Согласование всех этапов производства позволяет учесть все требования и получить нужный результат.
Размещение и установка
Модульная котельная МКУ-4,5 поставляется блоками, которые на месте монтажа собираются в одно здание. Блоки котельной максимально укомплектованы, все оборудование заводской сборки, что позволяет начать эксплуатацию котельной сразу после монтажа.
МКУ-4,5 устанавливается на ровный фундамент. Блоки соединяются болтами, трубопроводы, электрика и автоматика стыкуется. Далее котельная подключается к коммуникациям и проводятся пуско-наладочные работы.
Эксплуатация и техническое обслуживание
Важно соблюдать периодичность профилактических работ: осмотр котельной на наличие неисправностей, регулярная чистка котлов и дымоходов, регулировка, настройка параметров, осмотр и проверка топливных горелок, анализ выходных газов и своевременное устранением неисправностей.
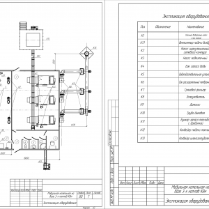
Комплектация
Модульная котельная МКУ-4,5 комплектуется по заявке заказчика.


















