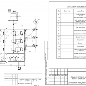
Устройство и принцип работы
Модульная котельная МКУ-3,75 состоит из одного или нескольких утепленных блок-модулей с необходимым котельным оборудованием. Котельная может иметь одноконтурное или двухконтурное исполнение, оборудованной пластинчатыми теплообменниками и приборами водоподготовки жидкости. Помещение оснащается водоотведением, радиаторным отоплением, системами вентилирования для комфортной работы персонала котельной.
Условное обозначение
Модульная котельная МКУ-3,75, где:
- М – модульная;
- К – котельная;
- У – установка;
- * – мощность котельной в МВт
Особенности и преимущества
- индивидуальная комплектация;
- автономная работа без зависимости от центральных систем;
- транспортабельность;
- легкий монтаж и демонтаж;
- согласование всех этапов производства.
Размещение и установка
Совместно с монтажом модулей котельной установки МКУ-3,75, выполняется монтаж транспортеров углеподачи и шлакоудаления, дымовых труб с газоходами, трубопроводов, соединяющих модули. По необходимости подключаются электросиловое оборудование и котельная автоматика. Устройство доставляется в максимальной заводской сборке, готовое к монтажу и пуско-наладочным работам. Установка МКУ-3,75 монтируется на подготовленное выравненное основание и надежно фиксируется при помощи анкерных креплений.
Монтаж и пуско-наладочные работы котельного оборудования производятся специалистами с соблюдением СНиП 11-35-76 «Котельные установки» и «Правил устройства и безопасной эксплуатации паровых и водогрейных котлов».
Эксплуатация и техническое обслуживание
Важно соблюдать периодичность профилактических работ: осмотр котельной на наличие неисправностей, регулярная чистка котлов и дымоходов, регулировка, настройка параметров, осмотр и проверка топливных горелок, анализ выходных газов и своевременное устранением неисправностей.
Комплектация
Модульная котельная МКУ-3,75 комплектуется по заявке заказчика.

















