Устройство и принцип работы
Модульная котельная МКУ-1,4 состоит из одного или нескольких утепленных блок-модулей с необходимым котельным оборудованием. Котельная может иметь одноконтурное или двухконтурное исполнение, оборудованной пластинчатыми теплообменниками и приборами водоподготовки жидкости. Помещение оснащается водоотведением, радиаторным отоплением, системами вентилирования для комфортной работы персонала котельной.
Условное обозначение
Модульная котельная МКУ-1,4, где:
- М – модульная;
- К – котельная;
- У – установка;
- * – мощность котельной в МВт
Особенности и преимущества
- Изготовление под нужды заказчика позволяет укомплектовать модульную котельную исключительно необходимым оборудованием;
- Независимость от центральных систем обеспечивается автономной работой котельной;
- Легкий монтаж и демонтаж котельной позволяет использовать МКУ-1,4 множество раз на множестве объектов;
- Согласование всех этапов производства позволяет учесть все требования и получить нужный результат.
Размещение и установка
Модульные котельные МКУ-1,4 представляют собой отдельные блоки, которые собираются в единое помещение. В блоках уже установлено все оборудование, что позволит использовать котельную сразу после сборки.
МКУ-1,4 устанавливается на ровный подготовленный фундамент, секции соединяются болтами с учетом стыковки трубопровода и автоматики. После монтажа МКУ-1,4 подключается к коммуникациям.
Эксплуатация и техническое обслуживание
Важно соблюдать периодичность профилактических работ: осмотр котельной на наличие неисправностей, регулярная чистка котлов и дымоходов, регулировка, настройка параметров, осмотр и проверка топливных горелок, анализ выходных газов и своевременное устранением неисправностей.
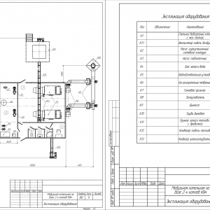
Комплектация
Модульная котельная МКУ-1,4 комплектуется по заявке заказчика.




















