Устройство и принцип работы
Модульная котельная МКУ-1,25 представляет собой комплект всего необходимого оборудования для подогрева воды, собранный в металлические каркасы, которые соединяются и образует единое помещение. Комплектация модульных котельных зависит от требований заказчика. Помимо всего основного оборудования, в котельной можно установить санузел и мойку для работников.
Стандартно в модульных котельных МКУ-1,25 установлены котлы с ручной топкой и шлакоудалением, но при установке топливного бака можно дополнительно установить системы топливоподачи. Также есть возможность организации помещений для хранения топлива.
Модульная котельная МКУ-1,25 транспортабельна за счет деления на секции. По окончанию работ она легко демонтируется и транспортируется на новое место.
Условное обозначение
Модульная котельная МКУ-1,25, где:
- М – модульная;
- К – котельная;
- У – установка;
- * – мощность котельной в МВт
Особенности и преимущества
- Изготовление под нужды заказчика позволяет укомплектовать модульную котельную исключительно необходимым оборудованием;
- Независимость от центральных систем обеспечивается автономной работой котельной;
- Легкий монтаж и демонтаж котельной позволяет использовать МКУ-1,25 множество раз на множестве объектов;
- Согласование всех этапов производства позволяет учесть все требования и получить нужный результат.
Размещение и установка
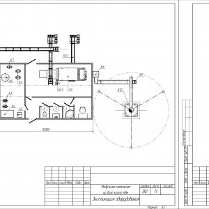
Совместно с монтажом модулей котельной установки МКУ-1,25, выполняется монтаж транспортеров углеподачи и шлакоудаления, дымовых труб с газоходами, трубопроводов, соединяющих модули. По необходимости подключаются электросиловое оборудование и котельная автоматика. Устройство доставляется в максимальной заводской сборке, готовое к монтажу и пуско-наладочным работам. Установка МКУ-1,25 монтируется на подготовленное выравненное основание и надежно фиксируется при помощи анкерных креплений.
Монтаж и пуско-наладочные работы котельного оборудования производятся специалистами с соблюдением СНиП 11-35-76 «Котельные установки» и «Правил устройства и безопасной эксплуатации паровых и водогрейных котлов».
Эксплуатация и техническое обслуживание
Важно соблюдать периодичность профилактических работ: осмотр котельной на наличие неисправностей, регулярная чистка котлов и дымоходов, регулировка, настройка параметров, осмотр и проверка топливных горелок, анализ выходных газов и своевременное устранением неисправностей.
Комплектация
Модульная котельная МКУ-1,25 комплектуется по заявке заказчика.



















