Устройство и принцип работы
Модульная котельная МКУ-0,9 состоит из одного или нескольких утепленных блок-модулей с необходимым котельным оборудованием. Котельная может иметь одноконтурное или двухконтурное исполнение, оборудованной пластинчатыми теплообменниками и приборами водоподготовки жидкости. Помещение оснащается водоотведением, радиаторным отоплением, системами вентилирования для комфортной работы персонала котельной.
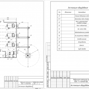
Условное обозначение
Модульная котельная МКУ-0,9, где:
- М – модульная;
- К – котельная;
- У – установка;
- * – мощность котельной в МВт
Особенности и преимущества
- Изготовление под нужды заказчика позволяет укомплектовать модульную котельную исключительно необходимым оборудованием;
- Независимость от центральных систем обеспечивается автономной работой котельной;
- Легкий монтаж и демонтаж котельной позволяет использовать МКУ-0,9 множество раз на множестве объектов;
- Согласование всех этапов производства позволяет учесть все требования и получить нужный результат.
Размещение и установка
Монтаж модульной котельной МКУ-0,9 осуществляется с учетом требований безопасности. Предварительно необходимо подготовить место для установки. Специалисты оценивают возможность выхода и подключения ключевых коммуникаций. Также рассчитывается рациональность монтажных работ в конкретном месте. Котельные определенной мощности монтируются на ровную и жесткую поверхность. В некоторых случаях в твердое основание закладываются специальные детали, которые нужны для крепления модуля.
После установки блока МКУ-0,9 осуществляется настройка автоматики и подключение коммуникаций. Специалисты монтируют запорную арматуру и подбирают оптимальный режим работы. Также выполняется тестирование всех рабочих систем. Модульные котельные МКУ-0,9 поставляются на объект уже в собранном виде. Поэтому для монтажа требуется минимум времени.
Эксплуатация и техническое обслуживание
Важно соблюдать периодичность профилактических работ: осмотр котельной на наличие неисправностей, регулярная чистка котлов и дымоходов, регулировка, настройка параметров, осмотр и проверка топливных горелок, анализ выходных газов и своевременное устранением неисправностей.
Комплектация
Модульная котельная МКУ-0,9 комплектуется по заявке заказчика.





























