Устройство и принцип работы
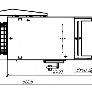
Котел КВм-5.85 – это водогрейных механический котел, состоящий из блока топки, системы трубопроводы и теплоизоляционного каркаса. Топливо загружается в бункер, откуда механическим путем попадает в топку. Начинается процесс горения, в результате которого нагревается энергоноситель в трубопроводной системе. Нагретая вода может использоваться потребителями для обеспечения нужд отопления и горячего водоснабжения.
Газы, образовавшиеся в процессе горения, дважды проходят через конвективную часть, полностью отдают тепло и выводятся. Шлак, образовавшийся в результате горения, выводится из системы механическим способом.
Условное обозначение
Водогрейный котел КВм-5.85 на угле, где:
- К – котел;
- В – водогрейный;
- м – механическая топка;
- 5.85 – мощность котла, МВт.
Особенности и преимущества
- Высокий показатель КПД;
- Развитая конвективная поверхность, способствующая увеличению срока службы оборудования;
- Отсутствие водоподготовки;
- Автоматизация топливоподачи и шлаковыведения;
- Компактный размер.
Размещение и установка
Котел КВм-5.85 должен быть установлен специалистами. Котел имеет значительный вес, поэтому устанавливается только на пол, на специально подготовленную поверхность. К бетонному фундаменту крепится топка, на которую ставится блок котла. Важно обеспечить доступ кислорода к вентиляционной системе и установить оборудование ровно, используя уровень. Далее собранный котел присоединяется к трубопроводу, устанавливаются запорные устройства, все необходимая арматура и контрольно-измерительные приборы. В конце производится монтаж газовыводящей системы и установка элементов управления.
Эксплуатация и техническое обслуживание
После сборки и монтажа котел подключается к водопроводной системе и начинает работу. Котел КВм-5.85 работает автономно и не требует вмешательства человека в процессе своей работы. Помимо простоты использования котел КВм-5.85 имеет еще и длительный срок службы с сохранением высокого показателя КПД на протяжении всего срока.
Важно отметить, что производить ремонтные работы и техническое обслуживание могут только квалифицированные специалисты, имеющие специальное разрешение. При организации технического обслуживания следует учитывать требования «Правил устройства и безопасной эксплуатации паровых и водогрейных котлов».
Комплектация
Котел КВм-5.85 поставляется в виде двух блоков (блок котла и механическая топка) с щитком управления. Котел укомплектован всем необходимым для правильной установки: клапанами, запорной арматурой и КИП.












