Устройство и принцип работы
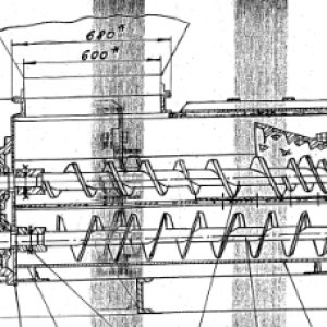
Конструкция дробилки состоит из нескольких отдельных частей. Корпус изготовлен из толстого металла, что положительно сказывается на прочности. Оборудование имеет электрический двигатель и механический привод, который передает крутящий момент на винты. Дробилки оснащены специальными редукторами. Благодаря редукторам снижается общая нагрузка на электромотор и увеличивается момент вращения.
Дробилка работает по простому принципу. В металлический бункер поступает каменный уголь, который в дальнейшем измельчается до определенной фракции. После измельчения сырье направляется на транспортер. Транспортерное устройство отправляет твердое топливо в топку котла.
Условное обозначение
Дробилка ВДГ – винтовая дробилка-грохот, где 10 – это расчетная производительность по сырому топливу.
Особенности и преимущества
- Высокая производительность до 10 т/ч;
- Не требует вытяжки, так как дробление угля происходит внутри аппарата, и пыль не выходит наружу;
- Экономия за счет отсутствия необходимости приобретения готового фракционного топлива;
- Легкий монтаж, не требующий фундамента;
- Мобильность позволяет установить дробилку на любой площадке.
Размещение и установка
Дробилка ВДГ-10 устанавливается в системах подачи топлива, перед системой транспортировки угля.
Эксплуатация и техническое обслуживание
Эксплуатация дробилки ВДГ-10 требует регулярной смазки всех подвижных частей и регулярный осмотр на наличие поломок. Установкой оборудования должны заниматься только квалифицированные работки, а также важно учитывать «Правила устройства электроустановок».
Комплектация
Дробилка ВДГ-10 поставляется в заводской сборке и требует только монтажа. В комплект поставки входят винты, угледробители, электродвигатель, редуктор, коробка передач и корпус.






